设备 | 中心给料机的组成及工作原理

Aumund中心给料机(图源:Aumund官网)
中心给料机是安装在原料仓和给料机之间的一种旋转卸料设备,用于将原料仓原料通过其内部的刮刀式卸料臂定量输出至给料机。
中心给料机不是原料仓到给料机环节必须的设备,但采用中心给料机后可以减弱或消除原料仓堵料,同时可以大幅压缩原料仓的安装高度,进而降低皮带层标高。因此,中心给料机特别适合于水分含量高等易堵的物料或者热值低造成皮带层标高较高的货种。
中心给料机的工作原理
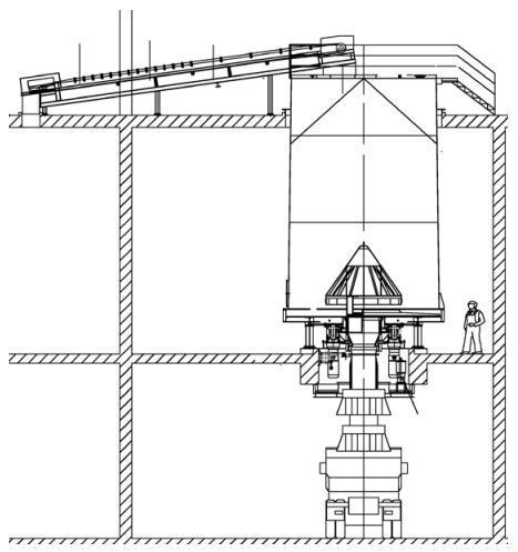
中心给料机布置在原料仓的下方,下部与给料机相连。主要由内锥体、卸料臂、传动底盘、驱动装置、缓冲料仓、电控系统及干油润滑系统组成。

驱动外置式中心给料机示意图(图源:网络)
中心给料机采用“先进先出”的原则进行卸料。卸料管插装在底盘上,卸料臂固装在卸料管的上端凹槽内,轮盘固装在底盘的下端,并与卸料管连接。原料进入料仓后,通过内锥体分散并沉降在传动底盘上的取料平台上。卸料臂设计为特殊的曲线结构,整体与取料平台平齐,其外缘与原料仓内壁相切,沿卸料管中心作圆周转动。


中心给料机的卸料臂(图源:Aumund官网)
内锥体下部有环形挡料板,与中心给料机底盘具有一定距离,防止在非工作状态下,料仓内的料流入中心出料口,同时可通过调整挡料板与中心给料机底盘之间的高度来实现调整给料机给料量的上、下限。
中心给料机的驱动型式
中心给料机根据其驱动装置的布置位置不同主要分为两种类型,即:外部驱动类型的中心给料机和内部驱动类型的中心给料机。
所谓外部驱动,就是把驱动电机安装在中心给料机底盘的外部,而减压锥内部为空。所谓内部驱动,就是将驱动电机安装在料仓内部的减压锥里面,外观整洁,结构紧凑。


驱动内置和驱动外置的中心给料机(图源:Aumund官网)
1)设备配置及布置空间的区别
内部驱动的中心给料机驱动电机及传动结构都安装在减压锥内部,可以配置单电机行星减速箱驱动方式,结构更加紧凑,出口落料管可以设计更短,对于设备布置的空间要求更低。出料口不受形状的限制。
外部驱动结构的中心卸料机,一般采用两套平行齿轮减速箱(也可以是单套),加回转支撑齿轮二级减速的传动结构。驱动电机和传动结构都布置在设备外面,高度上占用的料仓间空间较内驱大,在驱动设备等选型上不受小尺寸规格的限制。出料口兼回转轴承,截面必须是圆形。

单驱动外置的中心给料机(图源:Aumund官网)
2)设备结构及承力的区别
由于驱动设备布置的位置不同,两种结构的承力设计是有所不同的。
内部驱动结构的中心给料机驱动设备安装在减压锥底板上,因此其底板强度有要求,必须承受驱动部分的自重载荷及卸料臂(刮刀)的最大扭矩载荷,这些载荷通过减压锥的支撑传递给原料仓仓壁;底盘则只承受料载。
外部驱动结构的中心卸料机,驱动部分直接悬挂在底盘下面,因此底盘承受所有载荷,包括料载、驱动部分的自重、卸料臂的扭矩等综合载荷,这些载荷通过法兰螺栓传递给料仓壁;减压锥仅承受料载。
3)密封方式不同
外部驱动的中心给料机,其内部减压锥为密封结构,外部驱动部分存在回转动密封的轴承(落料管兼传动轴)。目前该结构主要采用的密封方式是弹性密封加迂回机械密封,原料仓的物料通过落料口处的回转间隙,有进入轴承内部、引发轴承磨损的风险。同时,减速机及齿轮结构暴露在室外,有漏油、漏粉的风险。经过调研,目前厂家已经改进了设计。
内部驱动的中心卸料机,减速机轴端穿出减压锥底部处没有轴承,仅是轴套密封,所以驱动设备可靠性高。其密封结构可以避免物料泄漏到料仓外部或进入减压锥内部。
中心给料机的优点
采用中心给料机,主要有以下的优点:
(1)该类型备的适应性强,可以完成多种散装物料的给料,包括流动性极差的各种散装物料。即使是流动性极差的物料,也能够完全避免物料堵塞问题的发生。
(2)中心给料机由大口到小口的给料过程在同一平面上完成,无需过渡,因此落料管内的物料为自由落体状态,给料通畅。
(3)卸料原理按照当前广泛采用的“先进先出”原则对各种物料进行卸料,避免物料产生长时间的堆积。
(4)中心给料装置内的给料过程由中心给料机完成,属于机械式可控制型给料,给料过程均匀稳定,没有因物料特性、含水量等各种因素而导致给料量突然变化的现象,给料机下的落料管内总是处于非充满状态。中心给料机由大口到小口的给料过程在同一平面上完成,无需过渡,因此落料管内的物料为自由落体状态,给料通畅。
(5)中心给料机改变了已往那种上口大、下口小的单一给料方式,从而彻底避免了堵料等问题。同时中心给料机由大口到小口的给料过程在同一平面上完成,无需过渡,在垂直方向上节省了大量的空间。
(6)给料量可在额定范围内通过变频器进行调解,调解灵敏,满足不同工况的要求。


双外部驱动的中心给料机装汽车(图源:Aumund官网)
免责声明:
给料机的工作原理
振动给料机是利用振动器中的偏心块旋转产生离心力,使筛厢、振动···
有机肥半湿物料粉碎机粉碎物料的特点?
半湿物料粉碎机多用于有机肥生产加工环节,粉碎鸡粪、腐殖酸纳等···
高精度智列式皮带秤主要由五部分组成
高精度智列式皮带秤1、1-8组icszl型智列式皮带秤称重桥架,单托辊···
有机肥皮带输送设备与其他有机肥设备的区别表现
皮带输送机性能优点:功能定位的核心差异,是皮带输送设备与其他···
如何配置有机肥粉碎机设备?
半湿物料有机肥粉碎机链式有机肥粉碎机链式有机肥粉碎机综上,有···
螺旋给料机堵料原因大揭秘!
今天咱们就来好好唠唠螺旋给料机堵料都有哪些原因。螺旋给料机的···
皮带机安装与跑偏问题汇总
皮带机常见问题之一,就是皮带跑偏。安装的质量好坏,对皮带跑偏···
皮带秤循环链码和挂码效验哪个好?电子皮带秤效验方法
以卷扬链码装置和循环链码装置为例,其工作原理:皮带秤上平放标···
上海选螺旋输送机?这家本地老厂的设备藏着不少实用优势
而上海平强包装机械制造有限公司,就是不少企业的共识之选,它家···
